City Villa

Conceptual Design

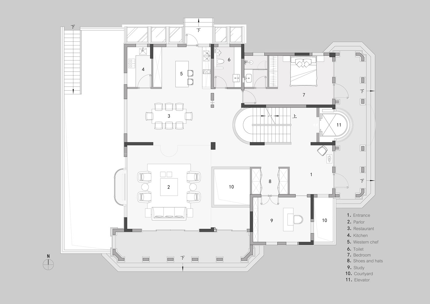
It is a complex process to transform the interior and exterior of the building. It needs to break away from the boundary and bondage of the original building and give it new expression and connotation. In the design process, both the aesthetic feeling of the building and the rationality of the structure and internal space distribution should be ensured. The project is located in a group of villas in the city, adjacent to Nanjing Zijinshan scenic area, and the surrounding environment is natural and pleasant. The original building is of European classical style, because there are many possibilities of space expansion in the site, so we plan to re plan and design the inside and outside of the building, hoping to present a modern and minimalist beauty, and retain some European architectural elements, so that it can not only integrate into the surrounding buildings, but also have its own unique personality. We can find inspiration from Romanesque architecture, extract classic elements such as coupons, arches and corridors, and apply them to architectural design. Cement gray is used as the main color of the building, and the color and proportion are strictly controlled to express the pure and minimalist beauty of the building; the soft curve formed by semicircle window and arch column neutralizes the seriousness brought by cement gray. Move the landscape into the room, use the patio and empty space to increase the connection between the upper and lower space. An elevator is added to the east of the building. The early morning sunshine through the elevator's glass curtain wall adds a little warmth and ritual to the day's life. Architecture is not a barrier between man and nature, it should be the extension of nature. We have a viewing platform in different directions on each floor, where residents can feel the nature at any time, and the surrounding mountain scenery is also gathered here.

003.jpg


E01外立面东.jpg


E02外立面南低.jpg


E03外立面西.jpg


E04外立面北.jpg






1576824300710382.png


1576824300649166.png


1576824300299539.jpg


1576824301958618.jpg







P03二层彩屏图A2.jpg